風機盤管的原理、形式
風機盤管(FCU)、空調箱(AHU)、新風機(FAU)、常規送風、排風(SF/EF)、廚房送排風(KEF/KSF)、消防送排風(SEF/SPF)
一、風機盤管工作原理。
二、風機盤管接線。
風機盤管系統組成部件:風機盤管、進回水閥門、Y型過濾器、電磁閥/水閥、控制面板、送回風管及風口、保溫、新風管、水管、金屬軟管。
風機盤管是中央空調理想的末端產品,風機盤管廣泛應用于賓館、辦公樓、醫院、商住、科研機構等場所。其工作原理是風機將室內空氣或室外混合空氣通過表冷器進行冷卻或加熱后送入室內,使室內氣溫降低或升高,以滿足人們的舒適性要求。
主要特點
優點:體積小、效率高、噪音低、能耗低;
機體結構精致,緊湊,堅固耐用,盤管采用優質鍍鋅板機殼,冷凝水盤采用模壓工藝一體成型,無焊縫、焊點、符合防火規范的保溫材料整體連接于水盤。
缺點
由于這種方式只基于對流換熱,而致使室內達不到最佳的舒適水平,故只適用于人停留時間較短的場所,如:辦公室及賓館,而不用于普通住宅。由于增加了風機,需要增加風管,提高了造價和運行費用,設備的維護和管理也較為復雜。
工作原理:依靠風機的強制作用,使空氣通過盤管,機組內不斷的再循環所在房間的空氣,使空氣通過冷水(熱水)盤管后被冷卻(加熱),以保持房間溫度的恒定,維持在一個你認為舒服的環境溫度。
中央空調系統的典型制冷運行過程
中央空調系統運行的過程實質上是熱量轉移的過程。
中央空調制冷時,典型的制冷時熱量轉移過程如下:

⑴空調室內熱空氣經風機盤管中的冷水吸收,熱量被轉移到冷水中;
⑵制冷機耗能做功,把冷水中的熱量轉移到冷卻水中;
⑶冷卻水的熱量經冷卻塔噴淋、氣化被轉移到環境大氣中。
空調在營造舒適小環境的同時,消耗大量能源和淡水,向大氣排放的熱量和CO2氣體污染了環境。
中央空調系統制熱運行過程
中央空調系統運行的過程實質上是熱量轉移的過程。
中央空調制熱時,典型的制熱時熱量轉移過程如下:

(1)管道煤氣在鍋爐中間燃燒加熱水產生蒸汽熱,
(2)由管道輸送至板交,熱量經板交轉移到熱水管路中;
(3)再由熱水管路將熱量送至風機盤管,盤管通過空氣將熱量送到房間。
空調在營造舒適小環境的同時,消耗大量能源和淡水。
風機盤管工作及控制原理




半集中式空調系統:(風機盤管+新風機組)
既有對新風的集中處理與輸配,又能借設在空調房間的末端裝置(如風機盤管)對室內循環空氣作局部處理,兼具前兩種系統特點的系統稱為半集中式系統。

控制方式
簡單控制
使用三速開關直接手動控制風機的三速轉換與啟停。
溫度控制
STC 系列溫控器根據設定溫度與實際檢測溫度的比較、運算,自動控制STV 系列電動兩 / 三通閥的開閉 ;直接控制風機的三速轉換與啟停,從而通過控制系統水流或風量達到恒溫的目的。

雙風機盤管接線

辦公區域面板

后場機械面板


常見樣式
臥式暗裝(帶回風箱)風機盤管
臥式明裝風機盤管
立式暗裝風機盤管
立式明裝風機盤管
卡式二出風風機盤管
卡式四出風風機盤管
壁掛式風機盤管
立柜式風機盤管(俗稱:水溫空調)
按形式:臥式暗裝、臥式明裝、立式暗裝、立式明裝、卡式五種。
按厚度:超薄型、普通型
按有無冷凝水泵:普通型、豪華型
按機組靜壓:0Pa、12Pa、30Pa、50Pa、80Pa (機外靜壓)。
按照排管數量 :兩排管、三排管
按制式:兩管制、四管制。
風機盤管所說的幾排指的是風機盤管表冷器銅管的排數,一般的二排就是銅管兩排,每排8根,一共16根銅管;三排就是銅管三排,每排8根,一共24根銅管。銅管的根數越多,制冷效果越好。
兩管制:
普通風機盤管夏季走冷水制冷,冬季走熱水制熱。
四管制:
多用于一些比較豪華場所,可以同時走熱水和冷水,即可以根據需要有的房間制冷,有的房間取暖。

低噪聲電機
盤管及樣式
葉輪

參數變化對性能造成的影響
風機盤管進、出水溫差增大時,水量減少,換熱盤管的傳熱系數隨著減小。另外,傳熱溫差也發生了變化,因此,風機盤管的制冷量隨供回水溫差的增大而減少,據統計當供水溫度為7℃,供、回水溫差從5℃提高到7℃時,制冷量可減少17%左右。
從哪里看風機盤管的質量
送冷(熱)量的保障
送風量的保障
噪音的數值比
冷凝水不泄漏
電器設計的合理性
鈑金件設計的合理性
如何鑒別風機盤管的優劣
聽聽噪聲 –高頻可去,低頻難消
看看做工—毛刺,縫隙,說明書,保修單
對比一下電機、風機、水盤、盤管的用材
電機是機組的核心部件 常州的最好
風機:噪聲的源頭
水盤、保溫:滴水的原因
盤管:親水鋁最好(藍色)
風機盤管系統設計
半集中式空調系統:除集中空調機房外,房間設末端裝置(二次設備)。
典型:風機盤管+新風系統
風機盤管:Fan Coil(FC)
風機盤管機組:Fan Coil Unit(FCU)
1、系統構造
FCU由風機、盤管和外殼組合而成。
FC使室內回風直接進入機組進行冷卻去濕或加熱處理。
與FC連接的水管有:
(1)供水管
(2)回水管
(3)凝結水管
思考:三根水管的空間位置是怎樣的?
供回水管道的最高點設自動排氣閥,局部最高點也需設。
凝結水管集中收集后排向地漏、廚房、衛生間等的污水盆、凝水立管等。

在可能的條件下,應盡量提高冷水入口溫度和降低熱水入口溫度。
風機盤管的冷水入口溫度,一般選用7℃~10℃,冷水溫升取5℃;
熱水入口溫度一般選用50℃~60℃。
調節
一般為風量調節(調節單向電容調速電機的輸入電壓),亦有采用水量調節。

也有調節盤管旁通風門來進行調節室溫。
新風供給方式
1、靠室內浴廁等排風形成的負壓自然滲入新風

優點:初投資和運行費經濟
缺點:室內衛生條件較差,室內溫度場不均勻。
適用:室內人少、要求不高的場合。
2、墻洞引入新風直接進入機組
如果風機盤管靠外墻安裝,可采用此方式。

雖然能夠使新風量得到保證。但管理麻煩,新風口會破壞建筑立面,增加污染和噪聲。
適用:要求不高的建筑物。
為節能,設帶全熱交換器的風機盤管,外墻應設有新風和排風二個風口。
3、由獨立的新風系統供新風
該方案提高了系統的調節和運轉的靈活性,且送入風機盤管的供水溫度可適當提高,水管的結露現象可得到改善。使用最廣泛。
新風與風機盤管的混合方式:
(1) 新風與風機盤管送風各自獨立送入房間

(2)新風與風機盤管送風混合
(3)新風與風機盤管回風混合

規范《公共建筑節能設計標準》GB50189-2005中5.3.12 設計風機盤管系統加新風系統時,新風宜直接送入各空氣調節區,不宜經過風機盤管機組后再送出。

具有獨立新風系統的空氣處理過程
根據風機盤管+新風系統的特點,為分析方便,一般讓風機盤管承擔變化負荷(如圍護結構和室內冷負荷),而新風處理機組只承擔新風本身的負荷。
因此夏季新風的送風點按室內空氣等焓線考慮,同時,冬季新風的加濕按蒸汽加濕的情況來考慮。

風機盤管機組的選擇
根據使用要求和建筑情況,選定風機盤管的型式及系統布置方式,確定新風供給方式和水管系統類型;
根據要求處理的制冷量和計算得到的風量,選用風機盤管,但應注意工況的不同。
選擇風機盤管:
一般是按中檔冷量選,校核風量,并看熱量是否滿足。
雙水管系統:供、回水各一根的風機盤管水系統。
夏季供冷水,冬季供熱水。
三水管系統:兩根供水管,一根回水管
適用于全年空調且建筑物內負荷差別很大的場合。
缺點:存在混合損失。
四水管系統:兩根供水管,兩根回水管
四水管系統與盤管的連接方式:

采用四水管制,初投資比較高,但運行經濟。
往往在舒適要求很高的建筑物內采用。
水系統的設計與水力計算與采暖管路同,如:管路有必要的坡度以便進行排氣;系統設膨脹水箱等。
水系統的調節控制:
變水量方式(采用按朝向分區的區域控制方式)
變水溫方式(分區控制水溫)
優點:
布置靈活,各房間可獨立調節室溫;
房間之間空氣互不串通;
投資少,使用靈活性高等。
缺點:
對機組制作有較高質量要求;
每個FC須接凝結水管,其排水坡度有時可能影響吊頂布置及高度,或導致排水坡度不暢;
除非新風系統采用雙風量(或變風量)方式,否則過渡季節很少能夠利用室外風;
全年若都按最小新風比運行,室內空氣品質差。
由于FC有轉動設備,故不宜用在能產生引起爆炸危險的氣體和粉塵的房間。
風機盤管由于噪聲的限制因而風機轉速不能過高,所以機組剩余壓頭很小,氣流分布受限制,適用于進深小于6m的房間。
冷水機組、風機盤管及控制系統
一. 冷水機組及其控制
1. 說明
由于冷水機組已由設備供應商自身智能控制器提供等了優化控制,故本系統只考慮對冷水機組進行監視和簡單控制。
2. 可實現以下功能
(1).聯動啟動順序
冷卻塔風機-冷卻塔電動蝶閥-冷凍機的冷凝器-電動蝶閥-冷卻水泵-冷凍水的蒸發器-電動蝶閥冷凍水泵-冷水機組。
(2).聯動停止順序
冷水機組(延時5分鐘)冷凍水泵冷凍機的冷凝器電動蝶閥冷卻水泵冷凍水的蒸發器電動蝶閥冷卻塔電動蝶閥冷卻塔風機。
(3). 壓差旁通監控
在總進水管和總回水管上設置壓力傳感器,通過計算供回水之間的壓差,將壓差與設定值進行比較,用PI調節方式調節電動兩通閥,使壓差保持在設定的范圍內,在冷水機系統停止時,旁通閥全關。
(4).機組優化控制
根據冷源系統總負荷量(冷凍回水溫差×總流量)進行冷水機組運行臺數控制,進行臺數量與負荷相匹配,實現冷水機組最優啟停時間控制,根據送水/回水集水箱溫度的變化,通過特定的算法計算系統熱負荷的變化,并根據其變化調整冷熱源運行臺數,達到優化節能的目的。

(5). 冷卻塔優化控制
檢測負荷側實際負荷,自動分組開啟冷卻塔臺數,已達到節能目的。
(6). 均衡運行控制
自動累計每臺冷水機組運行時間,優先開啟運行時間相對較少的機組,使每臺機組運行時間大致相等。
(7). 顯示
顯示冷水機組、水泵、冷卻塔的運行狀態和故障狀態,也顯示電動蝶閥和水流開關的狀態。
(8). 記錄
中央站彩色動態圖形顯示,記錄各種狀態和報警;記錄啟停時間;累計運行時間及其歷史數據等參數。
(9). 時序
中央監控對系統中的各種溫度、設備運行狀態和報警及各種設備的啟停、可編制節假日、上下班等時間運行程序,在不同的時間段合理地運行設備,節約能源。








二.風機盤管
風機盤管是空調系統的末端裝置,風機盤管一般均可以調節其風機轉速(或通過旁通閥調節經過盤管的水量),從而調節送人室內的冷/熱量,實現對室內溫度的調節。風機盤管對室內的濕度調節的工作過程及原理是類似的。
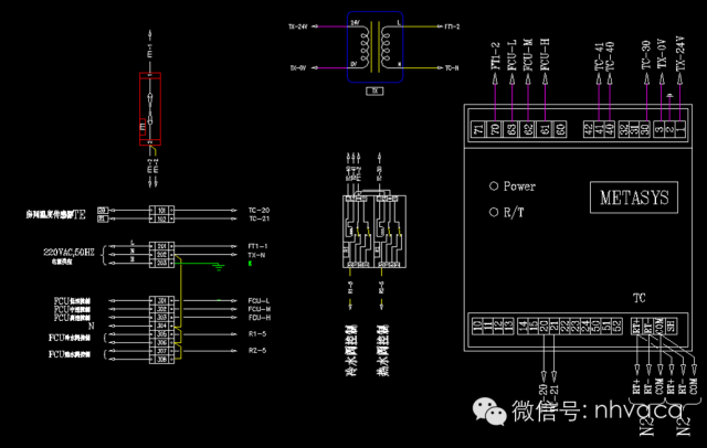
管制冷/熱合用的風機自管控制原理圖

風機盤管二管制溫度控制系統是由溫度控制器TC-1、電動閥VA-1組成。控制器TC-1的作用是檢測室內的溫度并與控制器設定溫度相比較,并根據比較結果對電動閥VA-1進行通、斷控制,從而使房間溫度保持恒定。
TC-1通過檢測室內溫度,并與設定的溫度比較,當室內需要冷風或熱風時,控制器打開電動閥和風機,向室內供冷或供熱。
TC-1部分型號當室內溫度低于5℃時,自動啟動風機,以防止盤管凍裂(此功能可設置)。
獨立運行的風機盤管的溫度控制器沒有網絡通信接口。溫控器安裝在空調房間內。溫控器的設定溫度一般在5℃~30℃范圍內可調。通過操作溫控器上的“高、中、低”三擋開關,來控制風機盤管內的風機按“高、中、低”三種轉速速運行。
空調系統工作在夏季模式時,空調水管供應冷凍水,溫控器選擇開關應撥在“COOL(冷)擋。當室溫升高并超過設定點溫度時,恒溫器的觸點接通,電動閥被打開、風機運行,風機盤管對室內空氣制冷;當室溫在冷氣的作用下降低并低于設定溫度時,恒溫器的觸點斷開,電動閥被關閉、風機停止運行,風機盤管停止對室內空氣制冷。這樣往復循環,使室溫保持在一定范圍之內。
風機盤管的冷/熱量可通過控制盤管水量、氣流旁通、風機轉速或三者的結合來控制。冷/熱量的控制可手動也可采用自動模式。
三. 風機盤管加新風系統
1. 新風系統
新風系統就是在24小時不開窗的前提下仍然能夠引入室外新鮮空氣,排除室內渾濁有害的空氣;新風系統由風機、進風口、排風口及各種管道和接頭組成。安裝在吊頂內的風機通過管道與一系列的排風口相連,風機啟動,室內受污染的空氣經排風口及風機排往室外,使室內形成負壓,室外新鮮空氣便經進風口進入室內,從而使室內人員可呼吸到高品質的新鮮空氣,這就是新風系統。
正負壓不均衡導致空氣流動,通俗的講就是根據在密閉的室內一側用專用設備向室內送新風,再從另一側由專用設備向室外排出,則在室內會形成“新風流動場,從而滿足室內新風換氣的需要。
2. 風機盤管工作原理
風機盤管是中央空調系統使用最廣的末端設備,風機盤管的全稱為中中央空調風機盤管機組,房間局部吊頂的風口就隱藏著風機盤管,它不停的為我們帶來舒適的溫度。
(1). 風機盤管控制方案分類
風機盤管控制多采用就地控制的方案,分簡單控制和溫度控制兩種:
風機盤管簡單控制:使用三速開關直接手動控制風機的三速轉換與啟停。
風機盤管溫度控制:使用溫控器根據設定溫度與實際檢測溫度的比較、運算,自動控制電動兩/三通閥的開閉,風機的三速轉換,或直接控制風機的三速轉換與啟停,從而通過控制系統水流或風量達到恒溫。
(2)風機盤管組成
風機盤管主要由風機,換熱盤管和機殼組成,按風機盤管機外靜壓可分為標準型和高靜壓型、按換熱盤管排數可分為兩排和三排,換熱盤管一般是采用銅管串鋁翅片,銅管外徑為10~16mm,翅片厚度約0.15~0.2mm,間距2.0~3.0mm,風機一般采用雙進風前彎形葉片離心風機,電機采用電容式4極單相電機、三檔轉速、機殼和凝水盤隔熱。
(3)風機盤管空調系統的工作原理
借助風機盤管機組不斷地循環室內空氣,使之通過盤管而被冷卻或加熱,以保持房間要求的溫度和一定的相對濕度。盤管使用的冷水或熱水,由集中冷源和熱源供應,與此同時,由新風空調機房集中處理后的新風,通過專門的新風管道分別送人各空調房間,以滿足空調房間的衛生要求。
風機盤管空調系統與集中式系統相比,沒有大風道,只有水管和較小的新風管,具有布置和安裝方便、占用建筑空間小、單獨調節好等優點,廣泛用于溫、濕度精度要求不高、房間數多、房間較小、需要單獨控制的舒適性空調中。
風機盤管工作原理沒有中央空調復雜,其實我們可以把風機盤管形象的看做是一臺電扇,只是這臺電扇吹出來的風是我們需要的溫度。目前市面上風機盤管很多,為了節約成本,很多公司會選擇國產風機盤管,而采用進口中央空調主機,這樣并不影響整個中央空調系統的運行和使用效果。

風機盤管加新風系統優點(與全空氣系統相比)
優點一:控制靈活,具有個別控制的優越性,可靈活地調節各房間的溫度,根據房間的使用狀況確定風機盤管的啟停;
優點二:風機盤管機組體型小,占地小,布置和安裝方便,甚至適合于舊有建筑的改造;
優點三:容易實現系統分區控制,冷熱負荷能夠按房間朝向,使用目的,使用時間等把系統分割為若干區域系統,實施分區控制;
風機盤管加新風系統缺點(與全空氣系統相比)
缺點一:因機組分散設置,臺數較多,維修管理工作量大;
缺點二:室內空氣品質比較差,很難進行二級過濾且易發生凝結水滲頂事故。
缺點三:風機盤管機組方式本身解決新風量困難,由于機組風機的靜壓小,氣流分布受限制,實用于進深小于6米的房間。
風機盤管加新風系統優點與缺點并存,合理的設計、合適的設備選擇、正確的施工安裝可以減少風機盤管加新風系統帶來的缺陷,以上只是認識一下風機盤管加新風系統優點和缺點,對于設計師而言,可以做到取長補短;對于消費者而言,可以趨利避害,選擇適合自己的空調系統。
4. 說明
風機盤管作為中央空調系統的末端裝置,在眾多的公共場所廣為采用,其主要特點如下:
(1)、自成單元,調節靈活。風機盤管為三檔變速,且水路系統可根據用戶室溫設定情況,采取冷熱水自動控制溫度調節閥調節,從而使各房間可獨立調節室溫,以滿足不同空調使用客戶的需求,房間無人使用時可手動關機或自動定時關機,并且可以使開發商避免一次投入過大,便于其滾動開發,可根據入住客戶的情況開通不同的房間。從而降低了整體系統的運行費用。
整個系統分區控制較為容易,可以按房間的朝向、樓層、用途、使用時間等分成若干區域,按不同的客戶使用需求進行分區控制,從而避免了大風道系統必須集中控制的不合理的一面。
(2)、風機盤管機體小,布置靈活、安裝方便、占用建筑空間較少,便于配合內裝施工。但怎樣根據業主的不同需求,結合設計圖紙選擇較好的風機盤管應用到實際工程中去,應充分考慮了以下幾點:
1)、冷量的校核
一般是按計算的冷負荷來選擇產品,但應注意不同的新風供給方式會導致風機盤管的負載冷量也不同。當新風直接通過外墻送至房間時,未經熱濕處理,風機盤管的冷量=室內冷負荷+新風冷負荷;當設立獨立的新風系統時,則風機盤管的冷量=室內冷負荷。目前市場的產品,一般都是名義制冷量而實際運行中的冷量應是冷量×單位時間內的平均運行時間,即改變運行時間或風量,都會影響機組的輸入冷量。所以并非名義冷量越高越好,如果僅按高冷量選用機組,會出現供冷能力過大,導致開動率過低,換氣次數減少,室溫梯度加大,還會加大系統容量和設備投資,空調能耗加大,空調效果降低。所以冷量僅作為選設備的必要條件之一,還應兼顧其它因素。
2)、風量校核
主要按房間品質要求校核換氣次數。送風溫差越小,換氣次數越多,則空氣品質越好,就越舒適,為什么有的空調房間感受有異味、悶氣,就是風量校核沒有處理好。由于風機盤管的名義風量是在不通水,空氣進出口壓差為零的工況下測定的,故存在一些不切實際的因素,所以實際確定風量是應將這部分理想狀態下的風量值扣除,通過經驗測算,這部分增補風量應占名義風量的20—30%。
3)、送、回風方式
送、回風方式即形成所謂的氣流組織,其合理與否直接影響到空調房間的溫度場、速度場的均勻性和穩定性,也即空調效果的好壞。合理的氣流組織要求一定的送風速度,避免氣流短路,以保證一定的射流長度。風速取決于機外靜壓,送風量、送風口等因素。機外靜壓過低,會導致風量下降,射程降低,房間冷熱不均,設計氣流組織與實際運行狀態在曲線圖上存在較大差異,故應根據實際的建筑格局、房間的結構形式,進深、高度等情況,選擇中檔風量、風速指標來相應選擇風機盤管型號。目前市場上的風機盤管,各個廠家的機外靜壓值沒有統一標定,差異較大,再加上部分工地采用的是臥式暗裝機組,外接短風管、過濾器,進、回風格柵阻力值較大,因此在實際定貨時確定機外靜壓值選定為30Pa,有的房間甚至選擇50Pa機外靜壓值的機組,大于常規的20Pa左右阻力值,故在實際運行中保證了良好的均勻場,達到了預期的空凋效果。
風機盤管常見故障現象
1、風機有噪音;
2、風機不能啟動或運行速度很慢;
3、空調效果差或沒空調效果;
4、空調有異味;
5、空調漏水。
風機不能啟動或運行速度慢故障表現及處理方法
1、溫度開關損壞;用電筆測量溫控開關輸入端和風機輸出樁頭是否有電,如判斷溫度開關損壞,可更換或維修溫度開關。
2、運行速度慢;a、感覺一下風機表面溫度是否正常,b、停機后手動轉動風葉,感覺轉動是否靈活,如有阻力更換風機軸承,c、如手動盤運轉正常,更換啟動電容,d、測量電機線圈電阻,如不正常更換電機。
空調效果差或沒效果
1、打開盤管排氣閥,檢查系統循環水溫是否正常;
2、檢查進出口溫度;a、溫差很小,打開盤管排氣閥,檢查水溫是否正常,如水溫正常,再檢查二通閥是否打開,如二通閥未打開,繼續檢查二通閥供電是否正常,檢查Y型過濾網是否堵塞,b、進出口溫差正常,查看房間保溫是否正常,比如門窗是否關閉,如門窗未關空氣對流后,空調就沒有效果,應與客戶做好解釋工作,c、進出口溫差偏大出風口風量小,檢查進風口濾網是否有灰塵,檢查風機轉速是否正常。
空調有異味
1、檢查、清洗進風口風濾網;
2、檢查盤管翹片是否有灰塵,如果有灰塵應實施清洗方案;
3、檢查風管內是否有異物、灰塵、積水等,清潔干凈去除異味。
4、檢查積水盤有沒有異物。
空調漏水
1、排水不暢,a、檢查節水盤是否堵塞,b、檢查排水管是否堵塞,c、檢查排水管道坡度是否合理。
2、保溫層脫落,恢復保溫層。
3、排氣閥漏水,關緊排氣閥。
4、軟管、閥門、管件漏水,關閉總閥再進行更換。
空調水管爆管緊急處理
1、打開泄水閥排水減壓;
2、關閉空調主機、膨脹水箱補水閥增壓泵、 循環泵;
3、關閉爆管區域總閥;
4、關閉爆管區域電源;
5、危及到電梯時,關閉電梯電源,盡量停到高于爆管樓層;
6、及時挪開重要物資,清理積水。

渝公網安備50011802011249號