空氣源熱泵冷暖機組系統概述空氣源熱泵,除具備制取出采暖用熱水的功能外,空氣源熱泵機組還能切換到制冷工況制取冷凍水。空氣源熱泵的基本原理是基于壓縮式制冷循環,利用冷媒做為載體,通過風機的強制換熱,從大氣中吸取熱量或者排放熱量,以達到制冷或者制熱的需求。

按照逆卡諾循環原理,該系統主要空氣源熱泵主機和末端兩大部分組成。空氣源熱泵機組與末端共同使用,前者提供冷水或熱水,后者將冷水或熱水,通過熱交換,提供冷氣或采暖。空氣源熱泵機組是采暖系統中的主機,由于采用空氣源冷凝器不需要冷卻塔;而蒸發器是水冷的,夏天制冷時提供冷水,冬季制熱時提供熱水,風機盤管是空調系統的末端裝置,裝在室內如同把水從低處提升到高處而采用水泵那樣,采用熱泵可以把熱量從低溫抽吸到高溫。所以熱泵實質上是一種熱量提升裝置,熱泵的作用是從周圍環境中吸取熱量,并把它傳遞給被加熱的對象(溫度較高的物體)。
產品結構
空氣源熱泵頂出風、側出風結構

設計、選型與配置
一、空調負荷計算
1.空調負荷計算的組成(QL)
(1)由于室內外溫差和太陽輻射作用,通過建筑物圍護結構傳入室內
的熱量形成的冷負荷;
(2)人體散熱、散濕形成的冷負荷;
(3)燈光照明散熱形成的冷負荷;
(4)其他設備散熱形成的冷負荷;
(5)滲透空氣所形成的冷負荷
(6)新風量負荷
2.空調負荷計算方法簡單介紹
空調動態負荷的計算顯得比較繁瑣,即便是采用一些簡化手段,計算工作量也是比較大的。估算最簡便,捷徑行路,人之通性,慢慢的被它取而代之了。
但是估算的根據并不堅定,偏于保守是不可避免的,總是顧慮怕估算的小了,這也是可以理解的。估算法也要注意與實際相符合,要根據實際的經驗以及不同建筑的各自不同的情況。目前空調負荷的計算還是以估算為主。
3.民用建筑空調單位面積冷負荷(qL)

4.負荷計算——單位面積冷負荷法
QL=qL×S
式中:QL——建筑物空調房間總冷負荷 (W)
QL—— 冷負荷 (W/m2 )
S—— 空調房間面積 (m2)
二、 空調末端(風機盤管)的計算與選擇
(1)根據風量:房間面積、層高(吊頂后)和房間氣體循環次數三者的乘積即為房間的循環風量。其對應的風機盤管高速風量,即可確定風機盤管型號。
(2)根據冷負荷:根據單位面積負荷和房間面積,可得到房間所需的冷負荷值。利用房間冷負荷對應風機盤管的中速風量時的制冷量即可確定風機盤管型號
一般采用第二種方法——根據冷負荷選擇風機盤管,在特殊場合如對噪音要求較高的場所,可用第一種方法進行校核。
確定型號以后,還需確定風機盤管的安裝方式(明裝或安裝),送回風方式(底送底回,側送底回等)以及水管連接位置(左或右)等條件。
房間面積較大時應考慮使用多個風機盤管,房間單位面積負荷較大,對噪音要求不高時可考慮使用風量和制冷量較大的風機盤管。注意:對于風管超過一定長度的風盤,應采用中、高靜壓的風盤,且出風管道上不宜多于兩個出風口。
三、 采暖負荷計算
1.采暖負荷計算的組成(Qn)
冬季采暖通風系統的熱負荷,應根據建筑物下列散失和獲得的熱量確定:
1)圍護結構的耗熱量,包括基本耗熱量和附加耗熱量,
2)加熱由門窗縫隙滲入室內的冷空氣的耗熱量
3)加熱由門、孔沿及相鄰房間浸入的冷空氣的耗熱量;
4)建筑內部設備得熱;
5)通過其他途徑散失或獲得的熱量。
對于一般民用住宅層高在3m 以下工程上可采用面積熱負荷法進行概算。
單位面積熱負荷法:
Qn=K×qn×S
式中:Qn—— 建筑物的采暖設計熱負荷,W
S —— 建筑物的建筑面積,m2;
qn—— 建筑物的采暖單位面積熱負荷,W/m2,
K —— 附加系數
建筑各個區域的圍護結構、冷空氣滲透情況均有差別,如果需要計算的較為準確,應根據各個區域在建筑中的位置(如:是否靠近外墻、外墻上的門窗)和門窗(是否有冷空氣滲透)進行分別計算。
2. 室內采暖單位面積熱負荷計算(qn)
1)一般原則
別墅的負荷一般要比住宅的大一些。
別墅的頂層負荷要大于中間層或底層。
普通衛生間根據面積提供500~1000W的定值來計算。
別墅地下室一般不配。
客臥一般負荷相對較大。
對于外墻較大或玻璃面積較大的,建議做負荷計算
2)室內采暖單位面積熱負荷估算表(qn)

3. 附加系數
附加系數為采暖面積與全房間面積的比值,根據下表進行選擇:

上表的附加系數為標準推薦數值,在實際工程中應根據實際情況做出具體調整。
房間進深大于6 米時,以距外墻6 米為界分區當作不同的單獨房間,分別計算供暖熱負荷。
4.另一種采暖熱負荷的估算辦法
Qn=a×Rn×V×(tn-tw)
Qn—— 采暖熱負荷 W
tn—— 室內空氣溫度 ℃
tw—— 室外供暖計算溫度 ℃
V —— 建筑的體積 m3
Rn—— 體積熱指標 根據建筑的保溫情況宜取0.4-0.7
a —— 修正系數。請參考下表

四、 采暖末端計算與選擇
1. 地暖盤管
地暖面盤管的管間距直接影響到地板的散熱量,而地板散熱量需滿足室內負荷的要求。
管間距根據管材、室內設計溫度、供水溫度、地板材料等因素而定。
下表是PE-RT管材,地面材料為水泥地磚,在不同水溫、室內溫度和管間距的條件下的地面散熱量(其他地面材料的散熱量數據見附錄1)

2. 散熱片
根據散熱片進出口水溫,求出散熱片平均水溫;
根據室內設計溫度求出散熱溫差;
根據散熱溫差查散熱片選型表,獲得單片散熱量q。
五、 空氣源熱泵冷暖機組配置計算
1. 確定建筑的負荷
由設計院獲取
根據建筑物的負荷指標和相應建筑面積的乘積,得出建筑的負荷。
將各空調房間的負荷逐個相加得出空調總負荷。
2. 機組臺數和容量的確定
機組總負荷的確定:建筑的負荷或空調總負荷×80%左右的同時使用率。公寓房可不考慮同時使用率。特殊情況需根據建筑功能和使用情況確定。
大、中型工程應選二臺以上,但不宜過多,并考慮備用機組的可能性。
若建筑物的最大負荷與最小負荷的差距過大,宜大、小容量機組搭配工作。
六、 機組安裝位置規劃和環境控制
1. 機組安裝位置規劃
1) 熱泵主機的安裝與空調室外機的安裝要求相似。可安裝在屋頂、陽臺、地面上。出風口應避開迎風方向。
2) 主機(側出風)與四周墻壁或其他遮擋物之間的距離不能太小,出風口1米內不應有遮擋物,保證主機換熱器的吸熱散熱不受阻礙。
3) 主機(頂出風)進風口1米內不能有遮擋物,出風口2米內不應有障礙物,保證主機換熱器的吸熱散熱不受阻礙。
當機組安裝在屋檐下或機組上方有水平障礙物時,機組的安裝位置必須在通風良好的地方,否則容易發生氣流短路,造成機組散熱能力差。
2. 機組安裝環境控制
1) 盡量不在陽光直射的地方。
2) 不在臥室的窗臺或臥室的附近。
3) 進、出風有足夠的距離,便于散熱。
4) 能承受室外機自重的 2-3 倍以上的地方。
5) 沒有油煙或其它腐蝕氣體的地方。
6) 不影響其它因素或環境的地方。
七、 采暖和冷暖系統介紹
1. 采暖和冷暖系統分類
1) 開式循環系統:管路中的循環水與大氣相通的系統。循環水水與大氣接觸,易腐蝕管路;用戶與機房高差較大時,水泵則需克服高差造成的靜水壓力,耗電量大。
2) 閉式循環系統:管路系統不與大氣接觸,在系統最高點設有排氣閥的系統。管道與設備不易腐蝕;不需克服高度差,從而循環水泵功率小。
3) 同程式系統:并聯環路中的各支路的流程都是相等的系統。
◆優點:系統的水力穩定性好,各設備間的水量分配均衡。
◆缺點:由于采用回程管,管道的長度增加,水阻力增大,使水泵的能耗增加,并且增加了初投資。

4) 異程式系統:并聯環路中的各支路流程不等的系統
◆優點:異程式系統簡單,耗用管材少,施工難度小。
◆缺點:各并聯環路管路長度不等,阻力不等,流量分配難以平衡。

5) 定水量系統:系統中循環水量為定值,或夏季和冬季分別采用不同的定水量,負荷變化時,改變供、回水溫度以改變制冷量或制熱量的系統。
特點:定水量系統簡單,操作方便,不需要復雜的自控設備和變水量定壓控制。
6) 變水量系統,一般適用于間歇性降溫的系統(影院、劇場、大會議廳等):保持供水溫度在一定范圍內,當負荷變化時,改變供水量的系統。
特點:變水量系統的水泵的能耗隨負荷較少而降低,在配管設計時可考慮同時使用系數,管徑可相應減少,降低水泵和管道系統的初投資;但是需要采用供、回水壓差進行流量控制,自控系統比較復雜。
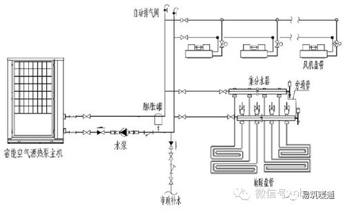
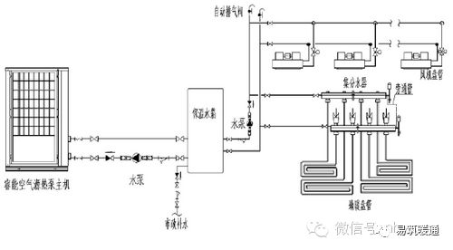
2. 空氣源熱泵采暖和冷暖常用系統型式
采暖系統圖——不帶緩沖水箱

采暖系統圖——帶緩沖水箱

冷暖系統圖——不帶緩沖水箱

冷暖系統圖——帶緩沖水箱
八、 水泵選型計算
冷暖系統按空調系統的水流量和水阻力選定水泵流量和揚程。
1. 水泵的流量:
在沒有考慮同時使用率的情況下選定的機組,可根據產品樣本提供的數值乘以1.1~1.2倍的系數選用。
如果考慮了同時使用率,建議用如下公式進行計算。公式中的Q為沒
有考慮同時使用率情況下的總負荷。
L = Q×0.86/ △T
L —— 循環水流量 m3/h
Q —— 總負荷 kW
△T —— 進回水溫差 ℃(采暖系統取10℃,冷暖系統取5℃)
水泵的流量 = (1.1~1.2)×系統循環水量
2. 水泵的揚程:應為它承擔的供回水管網最不利環路的總水壓降。
最不利環路阻力計算經驗公式如下:
Hmax =Δp1+Δp2+0.05L(1+ K)
△P1:機組內部的水壓降;
△P2:最不利環路中并聯的各末端裝置的水壓損失最大一臺(或部分)的水壓降。
0.05L:沿程損失取每100m管長約5mH2O;
式中K為最不利環路中局部阻力當量長度總和與直管總長的比值。當最不利環路較長時K取0.2~0.3;最不利環路較短時K取0.4~0.6。
水泵揚程(mH2O)= (1.1~1.2)× Hmax
3. 其他要求:
水泵必須選用熱水泵,其Q~H 特性曲線,應是隨著流量的增大,揚程逐漸下降的曲線。同時適用于水/乙二醇(最高30%)溶液。
應根據水泵提供商提供的參數要求,并根據現場水力系統的要求選泵,水泵應在其高效區內運行。
九、 膨脹罐選型計算

C = 系統中的水容量(包括熱泵主機、管道、末端等)約為系統循環
水流量的1/15 到1/20。
e = 水的熱膨脹系數(系統冷卻時水溫和鍋爐運行時的最高水溫的水
膨脹率之差,見下表),標準設備中e=0.0359(90℃)
P1=膨脹罐的預充壓力(絕對壓力)
P2=系統運行的最高壓力(絕對壓力)
V = 膨脹罐的體積

選型經驗:
5HP 以下 選用的2L 膨脹罐
5-10HP 選用的5L 膨脹罐
10-18HP 選用的8L 膨脹罐
18-30HP 選用的12L 膨脹罐
30-45HP 選用的18L 膨脹罐
45-60HP 選用的24L 膨脹罐
(其中制冷/熱量KW 和HP 的換算關系為1HP ≈ 2.5KW)
十、 儲能(緩沖)水箱計算
水暖系統需要考慮系統水容量對系統穩定性的影響,對于空氣源熱泵地暖系統,最大的影響因素是冬季機組除霜。空氣源熱泵機組化霜時間為 3-8min,取化霜時間 4 min 來計算蓄能水箱容積。
系統熱穩定性要求:冬季運行時,主機除霜時間 4 min,供水溫度允許降低不超過3℃。
系統最小水容量M1:
= Q * T /(C*3) (kg)
Q —— 主機制熱量 (kw)
T —— 化霜時間 (S)
C —— 水的比熱取4.2 (kJ/kg℃)
系統水容量M2:
= 0.15*L (kg)
L —— 系統管路總長 (m)
儲能水箱有效容積M:
= M1-M2 (kg)
十一、 系統管道計算
1. 管徑計算公式如下:

Q:管段內流經的水流量(L/s)
D:管道內徑(mm)
V:假定的水流速(m/s) (管內水流速推薦表如下,單位m/s)

2. 管徑經驗選定法——系統水流量和單位長度阻力損失表

3. 連接各末端裝置的供回水支管的管徑,宜與設備的進出水管接管管徑一致,可查產品樣本獲知。
十二、 分集水器選擇
1. 材質為黃銅材質或不銹鋼材質,同時適用于水/乙二醇(最高30%)溶液。
2. 一般規格:


3. 選型建議:根據盤管環路數選擇分集水器支路數,支路數應控制在8路以內,若超過8 路,可增設多一套分集水器解決。分集水器主管管徑應至少比系統供水管管徑大一個規格,支路數越多,分集水器主管管徑宜越大,具體以實際水力計算為準。
十三、 地暖管的選擇
1. 地暖管管徑
1) 在水阻力不超限的情況下,水流速度越大管道內越不容易積氣,有利于減小傳熱熱阻從而增加散熱量。一般管道內水流速度不得小于0.25m/s,一般流速應在0.25m/s-0.5m/s 之間為宜,分集水器內的水流速一般不宜超過0.8m/s,過小的流速會影響散熱量,過大的流速則會增加水泵的負擔,且水流噪聲會較明顯。
2) 一般要求在任何情況下系統水流量不得小于系統額定水流量的 60%,如果實際中有可能出現流量小于60%的情況,需加裝壓差旁通閥或其他旁通措施,否則可能導致機組保護。
3) 從減少加熱盤管的水側阻力,提高采暖效果的角度考慮,加熱管道宜選擇外徑Φ20 管道,從施工安裝方便的角度考慮,加熱管道宜選擇外徑Φ16 管道,根據工程實際情況選擇合適的方案。
2. 地暖管長度
加熱盤管的長度和環路簡易計算(例:采暖房間內面積10 ㎡,分集水器與采暖房間連接距離10 米)

加熱盤管長度建議:每環路加熱盤管長度宜控制在60~80 米,最長不應超過100 米,各環路長度宜相等或相近,管長差值應控制在15 米內。
3. 地暖管材質
PE-X :交聯聚乙烯 ,力學性能好,耐低溫和高溫。但是沒有熱塑性,不能采用熱熔接,通常采用卡式連接。是目前歐洲在地暖系統中使用量最大的一個品種。進口和國產的差價更大,低價位的產品應用存在一定的風險。
PE-RT:中密度聚乙烯,力學性能好,耐應力開裂,低溫沖擊,耐水壓,耐熱蠕變的性能。具有可以熱熔連接、原料性能穩定可靠和柔韌性好等優點,其綜合的優良特性使之在地板輻射采暖領域中具有一定的競爭力。價格適中。
PB:聚丁烯 ,管材最柔軟,相同壓力下,管壁設計最薄,是當前幾種用于熱水的塑料管中價格最貴和可靠性最高的品種。
由于采暖系統中滲入氧會加速系統的氧化腐蝕,選擇PB、PE-X、PE-RT塑料管道時宜選擇含有阻氧層的管道。
十四、 散熱片的選擇
1、根據房間的熱負荷和散熱片的散熱量相匹配的原則進行選型;
2、兼顧房間的舒適性、美觀性來確定與之相符的散熱片的型號;
3、散熱片選型的計算方法:
A=Q/q×β1×β2
A: 散熱片片數
Q: 房間熱負荷
q: 單片散熱量
β1: 散熱片片數修正系數

β2: 散熱片連接形式修正系數

十五、 風機盤管的選擇
風機盤管分類
按形式:臥式暗裝、臥式明裝、立式暗裝、立式明裝、卡式五種
按厚度:超薄型、普通型
按有無冷凝水泵:普通型、豪華型
按機組靜壓:0Pa、12Pa、30Pa、50Pa、80Pa (機外靜壓)
按照排管數量 :兩排管、三排管
按制式:兩管制、四管制
確定型號以后,還需確定風機盤管的安裝方式(明裝或安裝),送回風方式(底送底回,側送底回等)以及水管連接位置(左或右)等條件。
房間面積較大時應考慮使用多個風機盤管,房間單位面積負荷較大,對噪音要求不高時可考慮使用風量和制冷量較大的風機盤管。
考慮所接風管的沿程阻力、出風口的阻力、軟接的阻力, 低靜壓(12pa)直接接風口或接不超過1米的風管,中靜壓的風盤(30pa)接不超過四米的風管,高靜壓(50pa)的風盤接不超過七米的風管。
機組的安裝
一、 機組安裝一般要求
1.當兩臺或兩臺以上機主同時并列安裝時候,主機與主機之間間距應不小于700mm,需留有維修空間。
2. 主機搬運、吊裝時,應注意保持垂直,需傾斜時,傾斜角應小于45度,并注意主機在搬運、吊裝過程中的安全;
3. 主機安裝高度,要求主機底部應高于地面或板面(屋面)150~250mm;可直接用膨脹螺栓固定在水泥機座上,也可用型鋼制成鋼托架,加防震橡膠墊置于地面或板面(屋面),并確保機組水平放置。
4. 熱泵熱水機組的安裝應考慮氣流和噪音對環境的影響,選擇遠離人員密集區域。
5. 熱泵熱水機組的安裝位置應盡量避免處于陽光直射下,無可燃氣體泄漏,遠離鍋爐及其他會腐蝕冷凝盤管及機組銅管的空氣環境。
6. 如果機組位于未經許可的人員能夠接近的地點,應采取隔離安全措施,如加設防護欄等。
7. 所處場地設有排水地漏,保證排水順暢沒有積水。
8. 對于有特殊要求的場所,應向建筑設計師或其它專業人員咨詢。
二、 管道安裝
1. 水系統安裝主要工藝流程
定位放線→支吊架安裝→管路預制→管路安裝(由主干管向支管末端安裝→與設備端口連接→管路配件安裝→質量檢驗→水壓試驗→通水試驗→隱檢管路→保溫→外觀驗收(同其它設備驗收一起進行))
2. 聚丙烯管(PP-R)安裝
PP-R 管道中流速不宜大于2m/s,一般采用1-1.5m/s;管道穿過樓板時,應設置鋼制套管,套管頂部應高出樓板面 50mm,底部應與樓地板面平;管道連接應嚴格按照有關規范實施;
搬運管材或管件時,應小心輕放,避免油污,嚴禁劇烈撞擊、與尖銳物品碰撞和拋、摔、滾、拖;
管材或管件應放在通風良好的地方,不得露天存放,防止陽光直射;
不同管道最小支吊架間距見下表。
熱水PP-R 管支吊架安裝間距

3. 保溫做法
橡塑 PE 管(或聚乙烯)、發泡橡膠,采用粘接法,并且必須確保每條接縫密實,外層纏繞防潮塑料布,每圈搭接量不少于30mm,管道立管和帶坡度的管纏繞時應由下向上進行。
保溫管道穿越墻體或樓板時,保溫不得間斷;管道的支、吊、托架必須設置于管道保溫的外部,在穿過支、吊、托架處,應鑲以墊木避免形成“冷橋” 。其基本做法有以下2 種( 見下圖)

三、 地暖管道安裝
1. 鋪設方法
濕式鋪法:
鋪設管路后需要進行水泥填充,安裝高度比干式大,但蓄熱好,施工費用低。安裝高度:70-80mm。

干式鋪法:
直接將管子嵌入專門的鋪設模板中,不需要填充層,安裝簡單、散熱快,
安裝高度小,但價格比較貴。安裝高度:30-35mm。

1. 安裝工序
第一步:地面找平
第二步:分集水器安裝
第三步:邊角保溫板沿墻粘貼
第四步:在找平層上鋪設保溫層
第五步:鋪設鋼絲網
第六步:將加熱管用管卡固定保溫板。
2. 安裝要求及注意事項
地暖輻射供暖地板當邊長超過 8m 或面積超過40m2 時,要設置伸縮縫,縫的尺寸為5~8mm,高度同細石混凝土墊層。
塑料管穿越伸縮縫時,應設置長度不小于400mm 的柔性套管。在分水器及加熱管道密集處,管外用不短于1000mm 的波紋管保護,以降低混凝土熱膨脹。在縫中填充彈性膨脹膏(或進口彈性密封膠)。
加熱管驗收合格后,回填細石混凝土,加熱管保持不小于0.4Mpa的壓力;墊層應用人工抹壓密實,不得用機械振搗,不許踩壓已鋪設好的管道,施工時應派專人日夜看護,墊層達到養護期后,管道系統方允許泄壓。
地暖分水器進水處裝設過濾器,防止異物進入地板管道環路,水源要選用清潔水。
立管與分集水器連接后,應進行系統試壓。試驗壓力為系統頂點工作壓力加0.2Mpa,且不小于0.6Mpa,10分鐘內壓力降不大于0.02Mpa,降至工作壓力后,不滲不漏為合格。
3. 地暖盤管樣式
水溫相對均衡,負荷也較均勻。外區負荷大,因此供水從外側走。
這兩者兼顧水溫平均和內外區負荷平衡。但施工復雜。
4. 地暖的輔助材料
保溫板:在地暖鋪裝中保溫板起到隔熱保溫的作用
反射膜:不但起到了保溫隔熱的作用,還起到了向上散熱的作用
鋼絲網:一為保溫板起到了承重的作用,二可以固定地暖管材。
邊角隔熱層:不但起到了隔熱的作用還起到了伸縮的作用。
卡釘、扎帶:用來固定地暖管材的材料。
四、 散熱片安裝
散熱片安裝工序
第一步:對地面或者墻壁進行開槽。
第二步:鋪設管路并護卡槽。
第三步:安裝集分水器。
第四步:對散熱片管路進行壓力試驗。實驗壓力應為正常使用壓力的1.5倍,3-5 分鐘無滲漏為合格。
第五步:根據裝修進度進行散熱片安裝。
安裝要求及注意事項
散熱片底部距地面大于等于100mm;頂部距上端遮擋物距離應小于100mm。
非承重墻要用穿墻螺桿,兩側加鋼板固定,鋼板尺寸應不小于30*30*3(mm);
內保溫墻面膨脹螺栓必須穿過內保溫層深入墻內,深入墻內長度不小于50mm。
安裝要保證散熱片頂部的平直,帶跑風端應高一點,便于散熱片內的氣體排放。
掛鉤間距以散熱片對應片數距離為準,不宜集中或過度分散,遇長片時適當增加掛鉤數量。
散熱片宜帶包裝安裝,以保護散熱片外觀完好。
散熱片管道穿過墻壁和樓板等時,需設置保護套管。管道明裝時每300毫米需加裝管卡。
每組散熱片進出水口處需安裝閥門,以便于非采暖季散熱片的滿水養護。
溫控閥應在進水口處,水平安裝。
五、 風機盤管安裝
1. 安裝前的準備工作:
暗裝的臥式風機盤管、吊頂應留有活動檢查門,便于風盤能整體拆卸和維修。
安裝前確認管路和電氣接線的位置。
檢查吊裝結構是否能夠承受機組重量。
所有風盤安裝必須水平以確保排水順暢和正常運轉。
2. 風機盤管就位
吊架安裝應平穩牢固,位置正確。吊桿不應自由擺動,吊桿與托盤相連應用雙螺母緊固找平找正。安裝高度及坡度應正確。
按施工圖定出風機盤管的吊裝位置及標高,然后預制吊桿用膨脹螺栓固定吊點,最后將風機盤管吊裝就位;
膨脹螺栓用Ф8 膨脹螺栓,吊桿用Ф8 的圓鋼,吊點用角鋼制作;
風機盤管的凝水管端應低于另一端,以便冷凝水的暢通,或者保持風機盤管水平放置;
臥式暗裝風機盤管的下方吊頂,應預留檢查口以便運行維修的工作,檢查口尺寸不小于400×600,回風口可以同時兼作檢查口;
管路連接
1) 風機盤管供、回水閥及水過濾器應靠近風機盤管機 組安裝。
2) 冷熱媒水管與風機盤管連接宜采用金屬波紋軟管,接管應平直。
緊固時應用扳手卡住六方接頭,以防損壞銅管。凝結水管宜軟性連接,軟管長度一般不大于300mm。材質宜用透明膠管,并用喉箍緊固,嚴禁滲漏,坡度應正確,凝結水應暢通的流到指定位置。凝結水盤不得倒坡,應無積水現象。
3) 風機盤管同冷熱媒水管連接,應在管道系統沖洗排污后進行連接,且入水口加Y 型過濾器,以防堵塞熱交換器。
4) 風機盤管與風管、風口連接應嚴密可靠。
4. 水系統管道布置原則
管道盡量隱蔽;
減少裝修工作量及避免出現裸露水管;
盡量利用房間吊頂設置主干管和吊裝風機盤管;
盡量減少局部吊頂;
管道系統力求簡單,減少局部阻力;
排氣裝置盡量設置在室外;
盡量采用同程式;
5. 冷凝水管布置原則
冷凝水管盡量布置在靠近排放的地點,減少凝水管長度;
冷凝水管應就近排放,如果就近排放點多,條件允許,均可就近排放;
冷凝水管路注意泄水坡度,盡量保證在 0.003~0.005;
冷凝水管路找坡困難者,可以水平鋪設,但管徑放大一號。
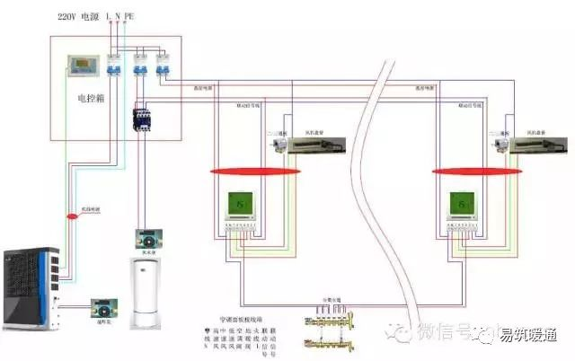
電氣連接
注:機組電氣聯接,請查看各廠商產品氣操作手冊,具體產品電氣連接本次略。
1. 警示與注意
警示:進行電氣系統聯接前,應先關閉電源并接妥地線,并由具備專業資質的人員進行操作!
按照下列要求聯接設備的電氣部分:
按照常規性的電氣標準;
按照所提供的電氣圖說明;
按照手冊中所標明的參數;
按照當地的接地規定;
注意事項
設備必須安裝主電源開關;
設備必須安裝接地線;
注意區分電源的火、零和接地線;
電源接線時應注意以下事項:
1.機組的主電源應在以下范圍內:單相電:220V±10%內。三相電:380V±10%內。
要注意區分電源的火、零線,不能接錯。
機組的接地螺栓必須與電源的接地線緊密連接,接地電阻≤4 歐姆。
2.空氣源熱泵接線(略)
3.循環水泵接線:
備注:因主板輸出的水泵繼電器為220V、5A,因此安裝三相水泵或大于500W 的單相水泵需加交流接觸器。

4.電加熱接線:

備注:因主板輸出的電加熱繼電器為220V、5A,因此安裝輔電加熱時需加交流
接觸器。
5.水流開關接線:

備注:機組必須安裝水流開關,不能短接水流開關,否則會造成機組損壞。
6.聯動開關接線:

備注:室內溫控器的聯動信號連接到主機的聯動信號端,保證主機和室內機聯動啟停,如無聯動信號,需短接端子上的聯動信號端。
7.室內溫控面板安裝
冷暖系統接線圖(不帶水箱)

冷暖系統接線圖(帶水箱)

常見故障與維護保養
一、常見故障及處理方法
在使用過程中如發現有故障,應立即切斷電源,請與專業維修人員聯系,維修人員在處理問題時,可參照下表排除故障。

二、水系統檢查與保養
空氣源熱泵冷暖機組是自動化程度較高的設備,使用時定期進行機組狀態檢查,若能對機組進行長期而有效的維護和保養,機組的運行可靠性和使用壽命都會得到有效的提高。
1.機外安裝的水過濾器應定期清洗,保證系統內水質清潔,以免機組因水過濾器臟堵而造成損壞;
2.用戶在使用和維護本機時應注意:機組內所有的安全保護裝置均在出廠前設定完畢,切勿自行調整;
3.經常檢查機組的電源和電氣系統的接線是否牢固,電氣元件是否動作異常,如有應及時維修和更換;
4.經常檢查水系統的補水、安全閥、排氣裝置工作是否正常,以免空氣進入系統造成水循環量減少,從而影響機組的制熱量和機組運行的可靠性;
5.檢查水泵、水路閥門是否正常工作,水管及水管接頭是否滲漏;
6.機組周圍請勿堆放雜物,以免堵塞進出風口,機組周圍保持清潔干燥,通風良好。定期清洗(1-2 月)空氣側換熱器,以保持良好的換熱效果;
7.經常檢查機組各個部件的工作情況,檢查機內管路接頭和閥門處是否有油污,確保機組制冷劑無泄漏;
8.若停機時間較長,應將機組管路中的水放掉,并切斷電源,套好防護罩。再運行時,開機前系統進行全面檢查;
9.機組出現故障,用戶無法解決時,請告電本公司在當地的特約維修部,以便及時使派人維修;
10.主機冷凝器清洗,建議采用20-30℃、濃度為5%的檸檬酸液清洗冷凝器,啟動循環水泵清洗2 小時,最后用自來水沖洗3遍;禁止用腐蝕性的清洗液清洗冷凝器。

渝公網安備50011802011249號